秦先生短发气质短发高清,张津瑜和吕知樾第二部曲的剧情,春雨影院免费观看电视剧高清
联系电话:0755-83482995
微信公众号:正佳国际集团
BPM系统
企业邮箱
快速导航
合作者
正佳简介
企业文化
发展历史
荣誉资质
合作伙伴
信息技术
客户服务
联系我们
传媒者
集团要闻
行业资讯
求职者
人才理念
人才引进
人才培养
首页
关于正佳
企业概况
企业文化
发展历史
荣誉资质
合作伙伴
发展历史
信息技术
客户服务
新闻中心
集团动态
行业资讯
主营业务
保税物流
供应链管理
融资租赁
香港仓储
陶瓷艺术
物业管理
国际货代
跨境电商
人才发展
人才理念
人才培养
人才引进
联系我们
主营业务
部门介绍
仓储资源
车辆资源
政策优势
地理优势
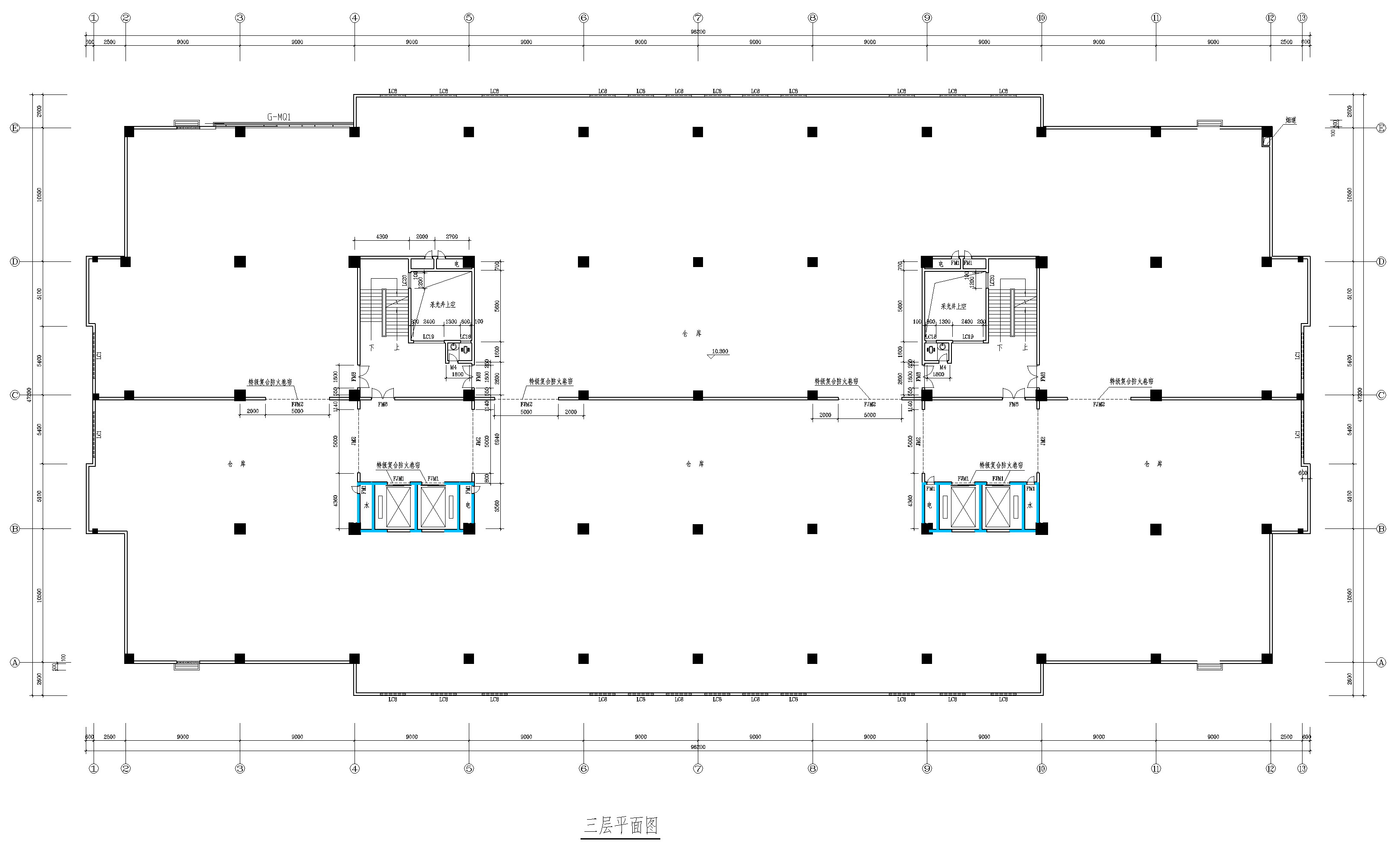
位置与面积:正佳物流中心位于广东省深圳市福田保税区市花路18号,总用地面积9768平方米,总建筑面积为24604平方米(其中:仓库面积22930平方米,办公面积1674平方米)
相关配套:货梯到点率多,首层四部3吨货梯,直接面对装卸平台,一字形的装卸平台可同时装卸22辆货柜车,配备搬运货物用的叉车8台,专业管理人员和网络化实时库存住处管理系统,使货物处理迅捷高效。
仓库平面图(点击可以放大)
主站蜘蛛池模板:
蛟河市
|
安陆市
|
叙永县
|
河间市
|
枣阳市
|
鹤壁市
|
墨竹工卡县
|
通城县
|
荃湾区
|
梨树县
|
裕民县
|
阳曲县
|
固安县
|
施秉县
|
平南县
|
南漳县
|
建宁县
|
陇西县
|
桐柏县
|
锦屏县
|
阳泉市
|
大邑县
|
达拉特旗
|
六枝特区
|
新巴尔虎左旗
|
凤阳县
|
平南县
|
凉城县
|
邮箱
|
古交市
|
乌鲁木齐县
|
介休市
|
凤翔县
|
松江区
|
裕民县
|
太湖县
|
高邮市
|
甘南县
|
多伦县
|
南郑县
|
珠海市
|